Перейти к публикации
Pancho

AutoCAD для Дизайнера. Быстрый старт.

Рекомендованные сообщения

Далее там-же текстом проставляем марки помещений. Добавляем базовые размеры.

Так-же на данном рисунке добавлена лестница на второй этаж.

248.gif.b169c1468a0540d4a4341552c96eee9a.gif

Поделиться сообщением


Ссылка на сообщение
Поделиться на других сайтах

Создание таблицы на примере Экспликации помещений.

 

Правила выполнения и заполнения таблицы Экспликация помещений указаны в ГОСТ 21.501-93 СПДС Правила выполнения архитектурно-строительных рабочих чертежей.

 

В AutoCAD есть специальный инструмент для построения таблиц. Но он не совсем удобен, т.к. с ним очень сложно выдерживать точно размеры по ГОСТ. Поэтому я разберу как чертить таблицы используя обычные отрезки и текст. Берем размеры по ГОСТ и увеличиваем в 100 раз.

252.gif.97d862dbb57e4abbf99564595619ba7d.gif

251.gif.3df22e5439a9c892292c58af04a1e548.gif

250.gif.2503faeddbf740b4fed920219d1a6d1e.gif

249.gif.900319bccc7d0f1b35e27b6e68ecac95.gif

Поделиться сообщением


Ссылка на сообщение
Поделиться на других сайтах

С черчением планов в общем-то все. Скомпонуем их на листы для печати.

Доступ к листам есть несколькими способами. Через Быстрый просмотр листов и через ярлыки, на подобии Microsoft Office Excel. Последний способ необходимо предварительно активировать в настройках.

261.gif.b2e2333eb2a28f2a0b30efcf2105645a.gif

260.gif.720b235106b2bd482754a78dd057b7f1.gif

259.gif.31c30039f9d0f5bef1742ab5dea170e4.gif

258.thumb.gif.aa6a3e6c1a03760cfbad3599c5be7dd1.gif

257.gif.84c46f29f172a14f17373b9882a667ee.gif

Поделиться сообщением


Ссылка на сообщение
Поделиться на других сайтах

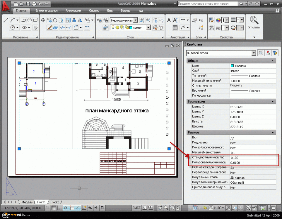
Перейдем на Лист 1.

 

На листе мы видим две рамки. Первая штриховая. Она отображает границы печати принтера, настроенного для данного листа. Эти границы печати необходимо учитывать, т.к. все что находится за их пределами напечатано не будет. Для разных принтеров эта граница может отличаться. Есть принтеры с возможностью печати без полей.

 

Вторая рамка, сплошная, - это видовой экран. Своеобразное окно в модель, переносящее от туда чертеж или его часть с определенным масштабом.

 

Выделим видовой экран и посмотрим на его свойства.

 

Слой: для видовых экранов лучше создавать отдельный слой и ставить для этого слоя запрет на печать. Тогда содержимое видового экрана будет выводится на печать, а рамка нет.

 

Вкл: Включает/отключает показ содержимого видового экрана.

 

Масштаб аннотаций: устанавливает масштаб отображения для аннатационных примитивов, например аннатационных размеров. Это мы рассматривали ранее.

 

Стандартный и пользовательский масштабы: опция, которая отвечает за то, с каким масштабом изображение будед перенесено с пространства модели в пространство листа.

 

Для создания видового экрана на Ленте переходим на вкладку Вид -> Группа инструментов Видовые экраны -> Создать видовой экран. В диалоговом окне выбрать Один (Можно также создавать сразу несколько). Далее необходимо указать две противоположные точки прямоугольника экрана.

266.gif.287c758e38a3940a74f0a7046a2ae397.gif

265.gif.778a1e5479c8bd84a567bae67cb38e61.gif

264.gif.460f715394d0f25c6ff8bfcb3dd026f8.gif

263.thumb.gif.790be461c45b3e47519f205bd1023bad.gif

262.thumb.gif.154e0091a0cf11fb6c506588be2e27f2.gif

Поделиться сообщением


Ссылка на сообщение
Поделиться на других сайтах

Создание рамки листа и настройка печати

 

Оформление основных надписей установлено в ГОСТ 21.101-97 СПДС Основные требования к проектной и рабочей документации.

В частности Приложение Д.

 

Форма 3 - Для листов:

основных комплектов рабочих чертежей;

основных чертежей разделов проектной документации;

графических документов по инженерным изысканиям

267.gif.4bc18a50b69f44c98cbff0bbe18d158a.gif

Поделиться сообщением


Ссылка на сообщение
Поделиться на других сайтах

Для того, что-бы наш чертеж нормально уместился на лист, он должен быть формата А3.

 

Настроим формат и принтер текущего листа.

270.gif.82345b3a88a9322f56e54115535bd7ed.gif

269.gif.8ff70ff41aa1b7bce7bf7a6c4a2de120.gif

268.thumb.gif.b2d6bb13ab3622c0f7c8f362e6a77078.gif

Изменено пользователем NULL

Поделиться сообщением


Ссылка на сообщение
Поделиться на других сайтах

Если нужна черно-белая печать

 

Идем в Параметры листа.

290.thumb.gif.3ff19b0f594e7877e98567dd11c1b7f1.gif

289.gif.7a36a5a2e22c1fab3143d032f09b8e38.gif

Поделиться сообщением


Ссылка на сообщение
Поделиться на других сайтах

Аналогично настраиваются и другие принтеры. Виртуальные и реальные.

Толщина линий при печати настраиваются в свойствах слоев или индивидуально для каждого примитива.

296.gif.c90da1ff7c874c0b2cad6239baf65377.gif

295.gif.6ef9a603499ee0333d7193ad071cfe1b.gif

Поделиться сообщением


Ссылка на сообщение
Поделиться на других сайтах

В программе AutoCAD есть возможность выводить через печать чертежи для сохранения в форматах JPG, PNG, PDF, DWF.

297.gif.d9b89e43404fe53bf4a7eaf4ea49e5ad.gif

Поделиться сообщением


Ссылка на сообщение
Поделиться на других сайтах

Для облегчения управления параметрами печати есть возможность создания именованных наборов параметров печати. Листы можно привязывать к данным наборам и не настраивать каждый в отдельности.

300.gif.18b1f2edc0adfdb937c6790f5f39acb1.gif

299.gif.5b098cb2d95a7ba9aee64ade355548aa.gif

298.gif.6923bcd869a94326c1c123e1624da295.gif

Поделиться сообщением


Ссылка на сообщение
Поделиться на других сайтах

Блоки

 

На блоках подробно останавливаться не будем. Разберем самые основы.

 

Определение (описание) блока - это не графический объект, состоящий из произвольного набора примитивов. Хранится в файле чертежа, а графически проявляет себя через Вхождение блока. Вхождений одного и того-же блока может быть произвольное количество, или не быть вовсе.

 

Например нам необходимо на плане гостиной разместить некоторое количество одинаковых стульев. Скажем 8. Мы вычерчиваем один. На основе него создаем описание блока с именем "chair" и после этого копируем Вхождение этого блока 8 раз. В итоге у нас всего восемь примитивов, а не гораздо больше.

 

Однажды созданные блоки можно в последующим использовать в других чертежах. Можно создавать целые библиотеки мебели, обозначений и пр. Это в последующем значительно ускоряет работу.

308.gif.1e581e16dd9d9af37f25eb89619bd5a2.gif

307.gif.9702e0a4bb3d8bd25db52170faa7a7af.gif

306.gif.8f4dd6d7a0169b1cd141fd7f0bfff3d7.gif

305.gif.605e217666b481a983b13f6b8dc60115.gif

Изменено пользователем NULL

Поделиться сообщением


Ссылка на сообщение
Поделиться на других сайтах

Атрибуты блоков

 

Атрибуты - это специальные текстовые примитивы, которые, в отличии от текста, могут иметь разные значения во вхождениях одного и того-же блока. Доступ к их значениям имеется через палитру свойств.

316.gif.9a4513fb649c58f165bba2dc63a01842.gif

315.thumb.gif.cff2c46ef5b8d7572b3cee68448d1d96.gif

314.gif.19654e42a4f84867634a6c649c63549f.gif

313.gif.7833cfff6b641b880fff1e0921b2ab61.gif

Поделиться сообщением


Ссылка на сообщение
Поделиться на других сайтах

Центр управления (Design Center)

 

Центр управления - специальный инструмент для управления (например переноса между чертежами) не графических объектов: слоев, описаний блоков, стилей размеров, стилей текста, стилей линий, листов и т.д.

327.gif.8473756e9e219e4daa76b014355bf727.gif

326.gif.ac58d5968ccc8006f478b1843e46dc04.gif

325.gif.403207154f36f0d810352398d376a47c.gif

Поделиться сообщением


Ссылка на сообщение
Поделиться на других сайтах

Создайте аккаунт или войдите в него для комментирования

Вы должны быть пользователем, чтобы оставить комментарий

Создать аккаунт

Зарегистрируйтесь для получения аккаунта. Это просто!

Зарегистрировать аккаунт

Войти

Уже зарегистрированы? Войдите здесь.

Войти сейчас

×
×
  • Создать...

Важная информация

Чтобы сделать этот веб-сайт лучше, мы разместили cookies на вашем устройстве. Вы можете изменить свои настройки cookies, в противном случае мы будем считать, что вы согласны с этим. Условия использования